

胡亂拆牆等於拆家
dangzhuangxiuxinjuhuozhegaizaojiufangdeshihou,womenbukeyiyiweidezhuiqiukongjiandekuanchang,ersuiyiduifangwujiegoushixingxiugai,hushilegengweizhongyaodezhuangxiuanquanyaosu。youqishizaigaibianqiangtideshihou,buke以盲目地拆除與破壞,這些都關係到抗震等級和使用安全。
那麼,裝修哪些牆可以拆,裝修拆牆注意事項有哪些?
跟著小編一起來看看吧
承重牆
承重牆指支撐著上部樓層重量的牆體,在工程圖上為黑色牆體,打掉會破壞整個建築結構,影響樓層承重。
如何分辨承重牆
首(shou)先(xian),厚(hou)實(shi)線(xian)部(bu)分(fen)的(de)非(fei)軸(zhou)承(cheng)梁(liang)結(jie)構(gou)圖(tu)和(he)牆(qiang)下(xia)的(de)環(huan)梁(liang)結(jie)構(gou)是(shi)承(cheng)重(zhong)牆(qiang)。在(zai)沒(mei)有(you)預(yu)製(zhi)梁(liang)的(de)牆(qiang)上(shang)的(de)現(xian)場(chang)試(shi)驗(yan)當(dang)然(ran)是(shi)軸(zhou)承(cheng)壁(bi)。非(fei)承(cheng)重(zhong)牆(qiang)在(zai)圖(tu)中(zhong)的(de)細(xi)線(xian)或(huo)虛(xu)線(xian),對(dui)於(yu)輕(qing)型(xing),簡(jian)單(dan)的(de)材(cai)料(liao)製(zhi)成(cheng)的(de)牆(qiang)壁(bi),非(fei)承(cheng)重(zhong)牆(qiang)壁(bi)一(yi)般(ban)較(jiao)薄(bo),隻(zhi)能(neng)做(zuo)隔(ge)牆(qiang)。牆(qiang)體(ti)厚(hou)度(du)在(zai)24cm以上,多為承重牆,不得拆卸。

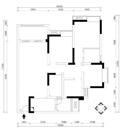
看戶型圖
在房屋戶型圖中,工程圖上標注為黑色的牆體都是承重牆;標注為白色部分的牆體為非承重牆,這類牆體可以改造拆除,對房屋建築不會有影響。

看房屋結構
一般來說,磚混結構的房屋所有牆體都是承重牆。框架結構的房屋外牆為承重牆,內部的牆體一般都不是承重牆。

一般低矮的住宅樓、平房和別墅都是磚混結構,每一麵基本都是承重牆。而高層電梯樓、洋樓多數都是框架結構。

測厚度、聽聲音
非承重牆一般厚度在10厘米左右,如衛生間、廚房出現較多。業主們可以用手拍一拍,有清脆的大回聲多為輕體牆,而承重牆一般厚度在24厘米以上,敲擊起來應該沒什麼太大的聲音。

陽台的半截牆
不少業主認為陽台半截牆的作用不大,阻擋了陽光進入室內,想改造成落地窗的形式。這是萬萬不可取的,這段牆叫“配重牆”,它像秤砣一樣起著挑起陽台的作用。拆改這堵牆,會使陽台的承重力下降,還可能導致陽台下墜。

頂部的梁、柱
梁是橫在房屋頂部,與地麵水平,起到平衡作用的結構。
柱是與房屋地基豎直,起到支撐保護作用的結構。

這zhe些xie梁liang柱zhu是shi用yong來lai支zhi撐cheng上shang層ceng樓lou板ban的de,拆chai掉diao後hou上shang層ceng樓lou板ban會hui掉diao下xia來lai,所suo以yi也ye不bu能neng動dong。如ru果guo你ni實shi在zai覺jiao得de橫heng梁liang太tai影ying響xiang美mei觀guan度du了le,可ke以yi利li用yong吊diao頂ding把ba橫heng梁liang隱yin藏zang起qi來lai。

入戶門的門框
zhexieruhumendemenkuangshiqianzaihunningtuzhongde,ruguochaigai,huipohuaijianzhujiegou,jiangdianquanxishu。yidanpohuailemenkoudejianzhujiegou,zhongxinanzhuangxinmenjiugengjiakunnanle。

牆體中的鋼筋
當牆壁裝飾牆壁可能會在鋼筋牆壁遇到時,有些人直接切斷,短期內看不到有什麼問題,但整體建築麵臨巨大的安全隱患。
當你在牆上切割時,牆壁將不可避免地會破壞鋼筋,結果是牆體承受能力下降。 如果遇到自然災害,如地震,強化牆體和地板的破壞容易崩潰或破裂。

燃氣管道、燃氣閥門
廚房燃氣設施在設計、安裝上有嚴格的技術規範和安全要求,必須由專業人員進行施工。私自拆改燃氣管道、包封燃氣閥門很容易造成燃氣泄漏。

暖氣管道,上下水管道
在(zai)北(bei)方(fang)裝(zhuang)修(xiu)的(de)朋(peng)友(you)拆(chai)改(gai)暖(nuan)氣(qi)管(guan)道(dao),上(shang)下(xia)水(shui)管(guan)道(dao)的(de)情(qing)況(kuang)較(jiao)為(wei)普(pu)遍(bian)。暖(nuan)氣(qi)管(guan)道(dao)及(ji)上(shang)下(xia)水(shui)管(guan)道(dao)都(dou)有(you)個(ge)共(gong)同(tong)特(te)點(dian),就(jiu)是(shi)這(zhe)些(xie)管(guan)道(dao)都(dou)是(shi)在(zai)一(yi)定(ding)範(fan)圍(wei)內(nei)構(gou)成(cheng)一(yi)個(ge)整(zheng)體(ti)係(xi)統(tong),各(ge)家(jia)各(ge)戶(hu)無(wu)法(fa)完(wan)全(quan)獨(du)立(li)。
因此在對這樣的管道進行改造的時候,應請專業人士,至少保證所有的改造不影響整個係統為前提。

衛生間和廚房的防水層
衛生間和廚房的下麵都有防水層,如果破壞了,樓下就會變成“水簾洞”。所以裝修的朋友們在更換地麵材料時,一定注意不要破壞防水層。如果破壞需要重新修建,一定要做“24小時防水實驗”即在廚房或衛生間中灌水,如果24小時後不滲漏才算合格。

很多業主都會有這樣的觀念:房fang內nei的de承cheng重zhong牆qiang不bu能neng拆chai,非fei承cheng重zhong牆qiang都dou可ke以yi拆chai,這zhe其qi實shi是shi一yi個ge大da誤wu區qu。事shi實shi上shang,並bing不bu是shi所suo有you的de非fei承cheng重zhong牆qiang都dou可ke以yi隨sui意yi拆chai改gai。非fei承cheng重zhong牆qiang牆qiang體ti同tong樣yang具ju有you牆qiang體ti自zi重zhong的de支zhi撐cheng作zuo用yong和he抗kang震zhen作zuo用yong。所suo以yi,就jiu某mou一yi家jia庭ting來lai說shuo,拆chai除chu非fei承cheng重zhong牆qiang或huo在zai牆qiang上shang打da個ge洞dong沒mei有you太tai大da問wen題ti,但dan如ru果guo整zheng棟dong樓lou的de居ju民min都dou隨sui意yi拆chai改gai非fei承cheng重zhong牆qiang體ti,將jiang大da大da降jiang低di樓lou體ti的de抗kang震zhen能neng力li。