
從業時間 12年
設計理念 用心觀察生活,感悟人生真諦,讓設計與生活互動
擅長風格 現代風格、美式風格、北歐風格、歐式風格、中式風格等

項目地址 保億湖山鹿鳴
項目麵積 136m²
設計風格 現代
常住人口 2人


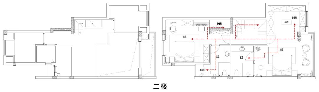
Second floor distribution master bedroom, second bedroom two bedrooms, a rest area for the client. The master bedroom is equipped with an independent bathroom and walk-in cloakroom to meet the needs of the elderly for washing and changing clothes. Admire defend area of stage basin, shower and closestool space into 3 areas, convenient use also be to accomplish dry wet separation at the same time, made sure the cleanness of toilet.


The first floor is the living area, and the oversized meeting room gives people a sense of spacious atmosphere. Because consider permanent living population is not much, and it is two old people, food is relatively delicate, do not need particularly much cooking function relatively for, also won't produce particularly much lampblack, use the design of open mode kitchen so, dining-room and kitchen are connected as an organic whole, also be to reduce a space to break up, convenient old people walk, have dinner.
·案例賞析·



·會客廳·
·living room·
zaihuiketingdeshejishang,caiyongdangxiaxiandaifenggeshejizhongliuxingdewuzhudengfangan,peihechaodadeguanjingluodichuang,rangshineideguangxianmingliangrouheerbuciyan。secaidapeishang,xuanzeshenqianjiehedefangshi,shendeshimuwen、淺的是大理石和皮質沙發,組合出略帶奢華、但又低調內斂的空間氛圍。

·餐廳·
·Dinner room·
Considering the relatively small number of permanent residents and diners, we only choose a table for four people, which meets the daily needs of customers and is also convenient for the display of dishes and table care. "L" model kitchen design, move line is fluent, area is wide, reduce the possibility that produces collision, reflect what we take "with person this" design concept and care to the old person.

·次臥·
·Second bedroom·
次臥是預留給來探望老人的兒女的。因為是年輕人居住,所以在設計上,我們將整體風格定位得更偏向年輕化、浪漫化,暖色係和帶有粉色的空間溫馨美好,滿足年輕人的審美需求。

·主臥·
·Master bedroom·
主臥我們沿用會客廳的設計思路和配色,仍舊是以暖棕色、深南瓜色和米白、暖(nuan)灰(hui)等(deng)顏(yan)色(se)搭(da)配(pei)組(zu)合(he),並(bing)選(xuan)用(yong)比(bi)較(jiao)具(ju)有(you)藝(yi)術(shu)感(gan)造(zao)型(xing)的(de)吊(diao)燈(deng),讓(rang)整(zheng)個(ge)空(kong)間(jian)在(zai)保(bao)持(chi)屬(shu)於(yu)家(jia)的(de)那(na)份(fen)溫(wen)馨(xin)前(qian)提(ti)下(xia)又(you)有(you)更(geng)多(duo)的(de)美(mei)感(gan)。茶(cha)幾(ji)是(shi)為(wei)客(ke)戶(hu)夫(fu)妻(qi)專(zhuan)門(men)準(zhun)備(bei)的(de),閑(xian)暇(xia)時(shi)在(zai)此(ci)小(xiao)坐(zuo)品(pin)茗(ming),聊(liao)聊(liao)生(sheng)活(huo),談(tan)談(tan)往(wang)事(shi),不(bu)失(shi)為(wei)好(hao)去(qu)處(chu)。

·衣帽間·
·Cloak room·
獨立的步入式衣帽間麵積寬闊,設計較多的櫃子並進行多種分區,方便客戶在此進行更衣和儲存。部分櫃體采用玻璃門的設計,通透、有質感。比較高的換鞋凳是出於客戶的年齡的考慮,也是人性化設計的體現。

·主衛·
·Master bathroom·
主zhu衛wei的de設she計ji上shang,三san分fen隔ge的de設she計ji與yu懸xuan空kong的de櫃gui體ti能neng最zui大da限xian度du減jian少shao積ji水shui的de產chan生sheng,易yi於yu打da理li和he保bao證zheng衛wei生sheng間jian的de清qing潔jie,大da麵mian積ji的de梳shu妝zhuang鏡jing大da方fang好hao看kan。淋lin浴yu間jian特te製zhi防fang滑hua設she計ji,增zeng大da摩mo擦ca力li,預yu防fang老lao人ren洗xi澡zao時shi跌die倒dao。
Adopt the design that defends on, the design of 3 disjunction and suspended cabinet body can minimize the generation of seeper, do easily and ensure the cleanness of toilet, the dressing mirror of large area is easy good-looking. Shower room special anti - slip design, increase friction, prevent the elderly fall when taking a bath.