
人間的是是非非

·項目信息·
項目地址:棕櫚泉悅江國際
項目麵積:180㎡
設計風格:新中式
常住人口:3-5人
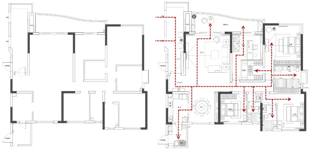
·項目詳解·


·案例賞析·

·客廳·
客廳設計上采用濃厚的新中式元素,不論是牆麵的山水畫、還是線條勾勒如窗欞的花紋裝飾,無一不透露著中式獨有的詩畫韻味。電視牆采用大理石花紋,靈動自然、奢華尊貴,再加以盤虯盆栽,打造出極富古典氣息的空間氣質。

·茶室·
獨立茶室既是待客休閑之所,也能作書房之用。仿古典櫃體的設計與山水式吊燈映襯,室內空間嫻靜雅致,恍惚已有茶香滿室。

·餐廳·
餐(can)邊(bian)櫃(gui)的(de)設(she)計(ji),利(li)於(yu)物(wu)品(pin)的(de)擺(bai)放(fang)和(he)存(cun)取(qu)。上(shang)方(fang)櫃(gui)體(ti)門(men)透(tou)明(ming),既(ji)能(neng)做(zuo)收(shou)納(na)之(zhi)用(yong),也(ye)能(neng)作(zuo)酒(jiu)櫃(gui)展(zhan)示(shi)之(zhi)用(yong)。與(yu)整(zheng)體(ti)風(feng)格(ge)相(xiang)符(fu)合(he)的(de)圓(yuan)形(xing)餐(can)桌(zhuo),再(zai)次(ci)點(dian)名(ming)新(xin)中(zhong)式(shi)的(de)主(zhu)題(ti),更(geng)表(biao)達(da)了(le)傳(chuan)統(tong)文(wen)化(hua)中(zhong)對(dui)“團圓”的期待。

·廚房·
廚房操作台做L型設計,動線流暢,寬敞便捷。生活陽台與之連通,相對擴寬廚房的適用範圍。家電配備齊全,烘焙、烤製都不在話下。

·臥室·
臥室整體去除複雜的設計元素,精準提煉最能表達風格的顏色,以灰綠、灰白、米色等低飽和度的色調進行搭配,打造出素雅簡潔、又頗有中式風韻的休憩空間。


主臥及主衛·
zhuwochuangtoushanshuihuazaicidianmingxinzhongshizhuti,shenzongseqiangmianyubaiseqiangmianzhonghe,houzhongyebushipiaoyi。wuzhudengshejirangshineiguangxiangengjiarouhe,zhurenzaicixiuxishuimiantiyangenghao。weishengjianzuoganshifenli,bianyubaochiqingjie,linyushizuofanghuasheji,xiaoxijiehenzhongyao。
·項目信息·
項目地址:棕櫚泉悅江國際
項目麵積:180㎡
設計風格:新中式
常住人口:3-5人
·項目詳解·